![]() |
A G. 721. feladat (2020. november) |
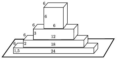
G. 721. Egy építőkocka-készletben minden elem tömör fából készült, egyforma tömegű és téglatest alakú. Minden téglatest egyik éle 6 cm, a másik kettő lehet eltérő. Lali négy elemet egymásra rakott, legfelülre egy kocka alakú darab került, és minden elem teljes alsó lapjával támaszkodott az alatta lévőre. Elgyönyörködött a toronyban, és azt is észrevette, hogy a torony különleges: minden emelet alatt ugyanakkora a nyomás. Rajzoljuk le a tornyot, és tüntessük fel a rajzon a méreteket is!
(3 pont)
A beküldési határidő 2020. december 15-én LEJÁRT.
Megoldás. Jelölje a téglatestek szélességét \(\displaystyle d_i\), magasságát \(\displaystyle h_i\), az ábra síkjára merőleges mélységét pedig \(\displaystyle m_i\), ahol \(\displaystyle i=1,2,3,4\) felülről lefelé számozva. A feladat szövege szerint
\(\displaystyle d_1=h_1=m_1=6~\rm cm.\)
(A továbbiakban a centiméter egységet nem írjuk ki.)
Tegyük fel,hogy a téglatesteknek a mélysége az az élhossz, ami megegyezik, vagyis
\(\displaystyle m_2=m_3=m_4=6.\)
A fahasábok tömege megegyezik, tehát a térfogatuk is ugyanakkora, \(\displaystyle 6^3=216\) egység nagyságú. Ez akkor teljesül, ha
\(\displaystyle d_2h_3=d_3h_3=d_4h_4=36.\)
Az egyes téglatestek rendre \(\displaystyle G\), \(\displaystyle 2G\), \(\displaystyle 3G\) és \(\displaystyle 4G\) erővel nehezednek az alattuk levő felületre. A nyomás akkor lesz ugyanakkora, ha
\(\displaystyle 6d_2=2\cdot 6d_1,\qquad 6d_3=3\cdot d_1 \qquad \text{és}\qquad 6d_4=4\cdot 6d_1,\)
vagyis
\(\displaystyle d_2=12, \qquad d_3=18\qquad \text{és}\qquad d_4=24.\)
Összevetve ezeket a térfogatok egyenlőségét kifejező egyenletekkel, az adódik, hogy
\(\displaystyle h_2=3, \qquad h_3=2\qquad \text{és}\qquad h_4=1{,}5.\)

Megjegyzés. Belátható, hogy ha a fahasábok valamelyikének nem az egyik vízszintes mérete, hanem a magassága egyezne meg a legfelső test 6 egységnyi magasságával, akkor a megadott feltételek nem teljesülhetnek. Ha pl. \(\displaystyle h_2=6\), akkor a térfogatra vonatkozó feltétel szerint \(\displaystyle m_2\,d_2=36\), a nyomások egyenlőségéből pedig \(\displaystyle m_2\,d_2=2\cdot36\) következne, amik egymásnak ellentmondó összefüggések.
Statisztika:
55 dolgozat érkezett. 3 pontot kapott: Beke Botond, Bencz Benedek, Bogdán Benedek, Borsos Balázs, Buzási-Temesi Imre, Cynolter Dorottya, Dancsák Dénes, Farkas Botond, Fehérvári Donát, Hegedűs Máté Miklós, Jeszenői Sára, Josepovits Gábor, Kohut Márk Balázs, Kovács Dorina , Láng Erik, Marozsi Lenke Sára, Molnár Kristóf, Novák Péter, Országh Júlia, Patricia Janecsko, Richlik Márton, Schneider Dávid, Sebestyén József Tas, Stein Felix, Szabó Réka, Szanyi Attila, Szederkényi Kincső, Szitka Virág, Telkes Ágota, Török Hanga, Vágó Botond, Veszprémi Rebeka Barbara, Vig Zsófia, Vincze Farkas Csongor, Waldhauser Miklós, Zsova Levente. 2 pontot kapott: Hudvágner Márton, Jeney Zsolt, Kiss Máté Ferenc, Kornya Gergely Csaba, Móricz Benjámin, Wórum Soma. 1 pontot kapott: 9 versenyző. 0 pontot kapott: 4 versenyző.
A KöMaL 2020. novemberi fizika feladatai
